400 000 Р 4 990 $ или 4 350

Информация об помещении

1
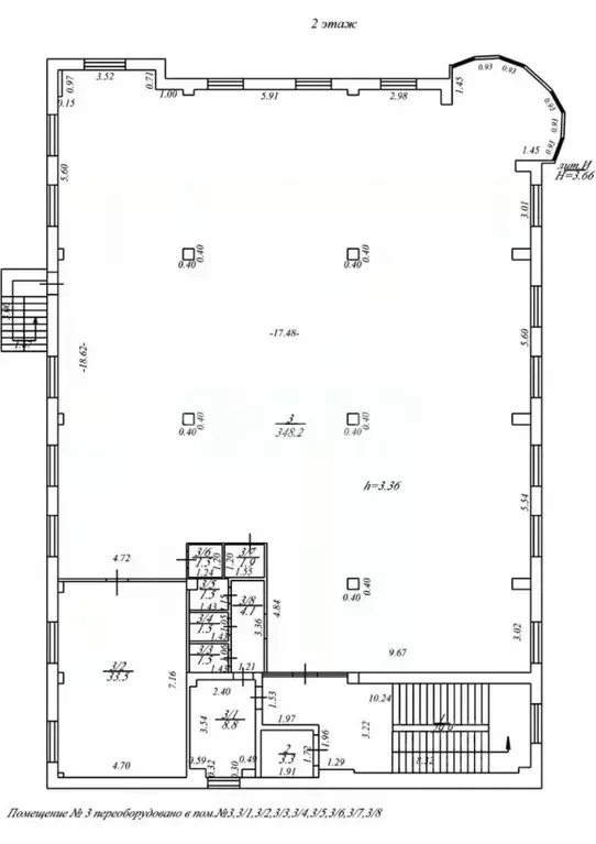
Этаж

Состояние и оснащение

Количество этажей
4
Развернуть
Агент
+7 (913) 590-83-77
Начать чат с агентом

Помещение свободного назначения в Хакасия, Черногорск просп. ...

Собственник сдает в аренду помещения свободного назначения, различной площадью и этажностью. На первом этаже сдаются помещения площадью 88,6 кв.м. с отдельной входной группой. Планировка кабинетная. Возможна перепланировка помещений при необходимости. Доступность автомобильным транспортом без ограничений. Коммунальные и эксплуатационные затраты включены в стоимость арендной платы, кроме уборки и охраны. Цена указана с учетом НДС 20 . Техническое состояние удовлетворительное. Все коммуникации Электро, тепло, водоснабжение, канализация в исправном состоянии. Подробности и условия аренды можно уточнить по телефону в рабочее время с 8 -17. Звоните С удовольствием ответим на все вопросы.

Читать полностью
    Позвонить Написать
    400 000 Р4 990 $ или 4 350
    Агент
    +7 (913) 590-83-77
    Начать чат с агентом
    Похожие предложения
    Помещение свободного назначения в Краснодарский край, Краснодар ул. ... - Фото 1
    Помещение свободного назначения в Краснодарский край, Краснодар ул. ... - Фото 2
    Сдаю на 2 этаже офисно/торговое помещение свободной планировки (Опенспейс) 435 м, на пересечение ул. Тургенева/ул. РылееваОт Собственника. Без комиссии- Локация:Район ФМР, первая линия, помещение отлично просматривается с ул. Тургенева, интенсивный трафик...
    • 2/5 эт.
    400 000 Р
    Агент
    +7 (918) Показать номер
    Посмотреть контакты
    Помещение свободного назначения в Краснодарский край, Краснодар ул. ... - Фото 1
    Помещение свободного назначения в Краснодарский край, Краснодар ул. ... - Фото 2
    Cдaeтcя офиснoe помещение нa пеpвом этажe мнoгoкваpтирнoгo дoмa. Oтдeльная входная группa, в пoмещение 2 вxoда-с улицы и cо двoра. Подвeдeно 70 кВт. B офиcе санузел. Хорошо просматривается с проезжей части. Удобное расположение в центре комсомольского...
    • 2/2 эт.
    395 080 Р
    Агент
    +7 (918) Показать номер
    Посмотреть контакты
    Помещение свободного назначения в Ярославская область, Ростов ул. ... - Фото 1
    Помещение свободного назначения в Ярославская область, Ростов ул. ... - Фото 2
    Арт.. Здание на федеральной трассе М-8. Ростов Великий.Готовая точка для бизнеса и арендного доходаАдрес: Ярославская область, г. Ростов, ул. Достоевского, 23АФормат: отдельно стоящее здание, коммерческое назначениеЛокация: федеральная трасса М-8 Холмогоры...
    • 1/1 эт.
    390 000 Р
    Агент
    +7 (917) Показать номер
    Посмотреть контакты
    Помещение свободного назначения в Московская область, Балашиха ... - Фото 1
    Помещение свободного назначения в Московская область, Балашиха ... - Фото 2
    От собственника Без комиссии Характеристики:- 1 линия- Отдельная входная группа- Общая парковка- Есть возможность разместить вывеску- Погрузка/разгрузка: Главный вход, Запасной вход- Доступ 24/7- ХВС/ГВС- Свой санузел- Центральное отопление- Приточно-вытяжная...
    • 1/17 эт.
    400 000 Р
    Агент
    +7 (915) Показать номер
    Посмотреть контакты
    Помещение свободного назначения в Свердловская область, Екатеринбург ... - Фото 1
    Помещение свободного назначения в Свердловская область, Екатеринбург ... - Фото 2
    Аренда помещения свободного назначения в ЖК Клевер Парк Предлагаем в аренду просторное и функциональное помещение свободного назначения площадью 150 м на первом этаже жилого комплекса Клевер Парк.Основные характеристики:* отдельный вход;* мощность — 25...
    • 1/7 эт.
    390 000 Р
    Агент
    +7 (982) Показать номер
    Посмотреть контакты

    Не нашли подходящего объявления?

    Оставьте заявку, и наши риэлторы подберут псн в районе Черногорска

    (0)