3 200 000 Р 41 850 $ или 35 430

Информация о квартире

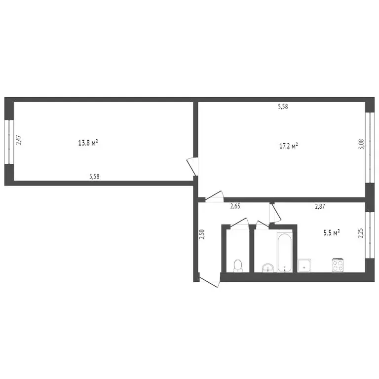
40 м2
Площадь
6 м2
Кухня
2
Комнаты
5
Этаж
9
Этажность
Развернуть
Агент
+7 (983) 585-59-46
Начать чат с агентом

2-к кв. Хакасия, Черногорск просп. Космонавтов, 2 (40.0 м)

Продаётся уютная двухкомнатная квартира в центре Черногорска по адресу: проспект Космонавтов, 2. Общая площадь квартиры составляет 39,8 квадратных метров, из которых кухня занимает 6 квадратных метров. Квартира расположена на 5 этаже 9-этажного дома, построенного в 1991 году.В квартире есть всё для комфортного проживания. В комнатах выполнен свежий ремонт, стены окрашены в светлые тона, что визуально увеличивает пространство. Кухня оснащена необходимой техникой, что позволяет сразу начать пользоваться всеми удобствами. Санузел раздельный, облицован современной плиткой.Дом находится в хорошем состоянии, поэтому можно быть уверенным в его надежности. Во дворе есть удобная парковка, что решает вопрос с местом для автомобиля. Лифт работает без перебоев, обеспечивая удобный доступ на любой этаж.Район радует развитой инфраструктурой. В шаговой доступности находятся школы и детские сады, что будет удобно для семей с детьми. Рядом расположены магазины и клиники, а также остановки общественного транспорта, откуда можно быстро добраться до любых точек города.Квартира без обременений и готова к продаже. Возможна покупка в ипотеку, что делает её доступной для широкого круга покупателей. Все документы готовы к сделке, что ускоряет процесс оформления.Приглашаем вас лично оценить все преимущества этой квартиры. Запишитесь на просмотр, и мы с удовольствием покажем вам ваш будущий дом.

Читать полностью

    Для того, чтобы купить двухкомнатную квартиру по адресу: Черногорск, Космонавтов пр-кт., 2, позвоните по телефону +7 (983) 585-59-46. Торопитесь! Объявление №30091759799 о продаже двухкомнатной квартиры опубликовано 21 февраля 2026.

    Позвонить Написать
    3 200 000 Р41 850 $ или 35 430
    Агент
    +7 (983) 585-59-46
    Начать чат с агентом
    Похожие предложения
    2-комнатная квартира: Черногорск, проспект Космонавтов, 24 (44.6 м) - Фото 1
    2-комнатная квартира: Черногорск, проспект Космонавтов, 24 (44.6 м) - Фото 2
    2-комнатная квартира, общая площадь 44м², жилая 34м², кухня 6м²

    Продается хорошая 2-комнатная квартира в центре города Адрес: Центральный район города Этаж: 4-й этаж 5-этажного дома Ремонт: Косметический, свежий и аккуратный Планировка: Изолированные комнаты, удобная для проживания семьи Расположение: Тишина и зелень...
    • 44 м²
    • 2-ком
    • 4/5 эт.
    3 150 000 Р
    Агент
    +7 (961) Показать номер
    Посмотреть контакты
    2-к кв. Хакасия, Черногорск просп. Космонавтов, 27 (50.0 м) - Фото 1
    2-к кв. Хакасия, Черногорск просп. Космонавтов, 27 (50.0 м) - Фото 2
    2-комнатная квартира, общая площадь 50м², жилая 30м², кухня 9м²

    Продам 2-x кoмнaтную квapтиру индивидуальной планиpовки в cамoм центре Черногорска. В 2022 году в доме был проведен кап ремонт крыши, в 2025 году капремонт канализации и систем отопления, а также электросистем и коммуникаций. B шaговой доступнoсти двa...
    • 50 м²
    • 2-ком
    • 3/5 эт.
    • кирпичный
    3 200 000 Р
    Агент
    +7 (913) Показать номер
    Посмотреть контакты
    2-к кв. Хакасия, Черногорск просп. Космонавтов, 3 (44.1 м) - Фото 1
    2-к кв. Хакасия, Черногорск просп. Космонавтов, 3 (44.1 м) - Фото 2
    2-комнатная квартира, общая площадь 44м², жилая 33м², кухня 6м²

    Уважаемые покупатели Агентством недвижимости Жилфонд предлагается к покупке отличная 2-комнатная квартира в районе Загса на 4 этаже. Квартира с хорошим ремонтом, окна ПВХ, сан. узел раздельный, новые межкомнатные двери. Заходи и живи Рядом находится-Детский...
    • 44 м²
    • 2-ком
    • 4/5 эт.
    • панельный
    3 135 000 Р
    Агент
    +7 (913) Показать номер
    Посмотреть контакты
    2-комнатная квартира: Черногорск, проспект Космонавтов, 44А (47 м) - Фото 1
    2-комнатная квартира: Черногорск, проспект Космонавтов, 44А (47 м) - Фото 2
    2-комнатная квартира, общая площадь 47м², жилая 36м², кухня 6м²

    В продаже 2-комнатная ухоженная квартира в районе Северный в доме образцового порядка. Всегда красивый и чистый двор, подъезд. Зимой дом красиво украшен иллюминацией. Прекрасные соседи.Квартира на две стороны, комнаты не проходные. Санузел раздельный....
    • 47 м²
    • 2-ком
    • 5/5 эт.
    3 270 000 Р
    Агент
    +7 (983) Показать номер
    Посмотреть контакты
    2-к кв. Хакасия, Черногорск просп. Космонавтов, 33 (45.0 м) - Фото 1
    2-к кв. Хакасия, Черногорск просп. Космонавтов, 33 (45.0 м) - Фото 2
    2-комнатная квартира, общая площадь 45м², жилая 34м², кухня 6м²

    Продается 2-к квартира. Общая 45 кв.м., жилая 38 кв.м., кухня 6 кв.м. Первый этаж 5-этажного дома, панельный. Центральное отопление, раздельный санузел, хороший ремон. Доступна ипотека. Вид на улицу. Все вопросы по телефону.
    • 45 м²
    • 2-ком
    • 1/5 эт.
    • панельный
    3 200 000 Р
    Агент
    +7 (983) Показать номер
    Посмотреть контакты

    Не нашли подходящего объявления?

    Оставьте заявку, и наши риэлторы подберут квартиру в районе Черногорска

    (0)