12 990 000 Р 163 500 $ или 140 800

Информация об помещении

1
Этаж

Состояние и оснащение

Количество этажей
2
Развернуть
Агент
+7 (913) 590-51-18
Начать чат с агентом

Помещение свободного назначения в Хакасия, Алтайский район, с. ...

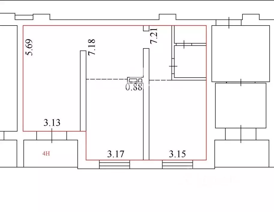
Кафе в с. Подсинее на 1-ой линии трассы с высочайшим автомобильным трафиком 16 соток земли Капитальное кирпичное здание общей площадью 254 м2, в котором есть:- оборудованное кафе на 1-м этаже с кухней и оборудованием для проведения мероприятий- бильярдная на цокольном этаже с 2-мя столами- шиномонтажная мастерская, сейчас в аренде - котельная с новым твердотопливным котлом - септик и скважина Все в собственности, без долгов и обременений, 2 хозяина. Продаем по причине отсутствия времени заниматься развитием бизнеса. При грамотном подходе, управлении и вложении времени заведение обещает стать крайне популярным местом притяжения местных жителей и проезжающих по трассе Готовы рассмотреть варианты сдачи в аренду здания полностью или по частям:- оборудованное кафе на 1-м этаже с кухней и оборудованием для проведения мероприятий 107 м2 - арендауб/м2. При необходимости, оборудование и всю мебель можем демонтировать. - бильярдная на цокольном этаже с 2-мя столами (столы можем убрать) 86,6 м2 - арендауб/м2. Отлично подойдет под склад, ПВЗ- шиномонтажная мастерская 46,5 м2 - арендауб/м2. Вы платите только электроэнергию Отопление, водоснабжение, септик лежат в зоне ответственности арендодателя Готовы обсуждать с новыми арендаторами мероприятия по облагораживанию и развитию привлекательности прилегающей территории в интересах бизнеса новых арендаторов.Все вопросы по телефону.

Читать полностью
    Позвонить Написать
    12 990 000 Р163 500 $ или 140 800
    Агент
    +7 (913) 590-51-18
    Начать чат с агентом
    Похожие предложения
    Помещение свободного назначения в Московская область, Балашиха ... - Фото 1
    Помещение свободного назначения в Московская область, Балашиха ... - Фото 2
    Продается нежилое помещение, общей площадью 105,7 кв.м. Помещение находится на первом этаже семнадцатиэтажного жилого дома в Балашихе мкрн. Федурново, ул. Авиарембаза (5 минут до ж/д станции Черное -(МЦД-4)). Недалеко съезд на платную дорогу М-12 (Москва-Казань)....
    • 1/17 эт.
    13 500 000 Р
    Агент
    +7 (916) Показать номер
    Посмотреть контакты
    Помещение свободного назначения в Санкт-Петербург ул. Орджоникидзе, ... - Фото 1
    Помещение свободного назначения в Санкт-Петербург ул. Орджоникидзе, ... - Фото 2
    Продаётся помещение свободного назначения площадью 42.92 кв. м. в новостройке Апарт-отель Vertical Московская по адресу Санкт-Петербург, Московский, ул. Орджоникидзе, д. 44а. Окна с видом во двор. Высота потолков 3.14 м. Общий вход со двора. Стоимость...
    • 2/26 эт.
    13 906 080 Р
    Агент
    +7 (911) Показать номер
    Посмотреть контакты
    Помещение свободного назначения в Санкт-Петербург, Санкт-Петербург, ... - Фото 1
    Помещение свободного назначения в Санкт-Петербург, Санкт-Петербург, ... - Фото 2
    Продаётся помещение свободного назначения площадью 122,2 м2 на цокольном таже в ЖК Университетский Петергоф, расположенного по адресу: СПб, г. Петергоф, ул. Чичеринская д.2, лит. А.Один собственник (юр., лицо). Ипотека (небольшой остаток долга). Прямая...
    • -1/7 эт.
    12 900 000 Р
    Агент
    +7 (911) Показать номер
    Посмотреть контакты
    Помещение свободного назначения в Ленинградская область, Тосненский ... - Фото 1
    Помещение свободного назначения в Ленинградская область, Тосненский ... - Фото 2
    В продажу напрямую от собственника предлагается небольшое универсальное коммерческое помещение площадью 62,2 м2, расположенное в сданном и заселенном корпусе нового ЖК Сибирь. Помещение имеет отдельный фасадный вход и два больших фасадных окна, высокие...
    • 1/16 эт.
    13 700 000 Р
    Агент
    +7 (981) Показать номер
    Посмотреть контакты
    Помещение свободного назначения в Ленинградская область, Всеволожск ... - Фото 1
    Помещение свободного назначения в Ленинградская область, Всеволожск ... - Фото 2
    ID: 831863Кабинет,комната для охраны,большой зал с шестью панорамными окнами,два сан узла.-Два выхода на улицу -Парковочные места на территории -Два парковочных места в подземном паркинге можно приобрести с помещением-Видео наблюдениеНа въезде в жилой...
    • 1/5 эт.
    12 000 000 Р
    Агент
    +7 (981) Показать номер
    Посмотреть контакты

    Не нашли подходящего объявления?

    Оставьте заявку, и наши риэлторы подберут псн в районе Подсинего

    (0)