9 200 000 Р 124 700 $ или 105 300

Информация о квартире

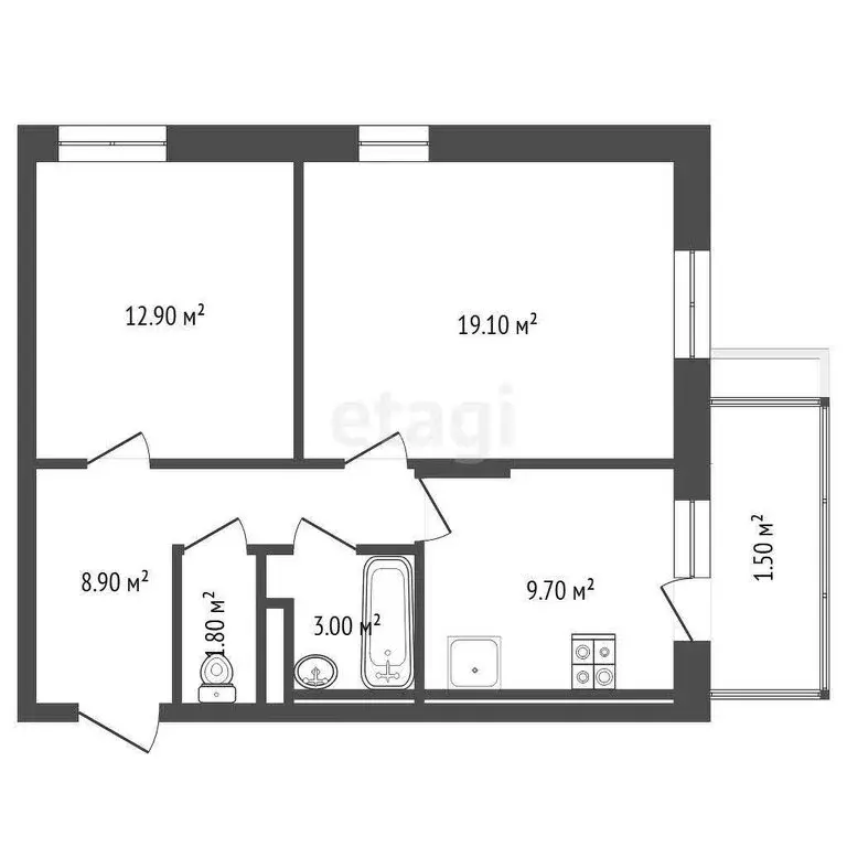
91 м2
Площадь
10 м2
Кухня
студия
Комнат
6
Этаж
6
Этажность

Дополнительная информация

Тип дома
кирпичный
Развернуть
Агент
+7 (913) 440-45-31
Начать чат с агентом

Студия Хакасия, Абакан ул. Чертыгашева, 124 (91.3 м)

Агентство недвижимости Жилфонд предлагает приобрести просторную 3-ех ком. квартиру Высокие потолки в 3 метра добавляют ощущение простора, окна выходят и во двор, и на улицу, что обеспечивает естественное освещение в течение всего дня. Две изолированные спальни, просторный зал совмещен с кухней площадью 10 кв. м со встроенным кухонным гарнитуром. В квартире есть два совмещенных санузла, сауна. Перепланировка узаконена Дом в хорошем состоянии, оборудован пассажирским лифтом, что особенно удобно для проживания на последнем этаже. Хорошие соседи, что немаловажно. Три квартиры всего на площадке. В шаговой доступности находятся школы, детские сады, клиники и магазины, все необходимое для комфортной жизни будет у вас под рукой. С нашим агентством Вы приобретаете сопровождение на всех этапах сделки, что является гарантией Вашей безопасности Рядом с объектом находятся:2 школы,3 детских сада,14 продуктовых магазинов,8 спортивных учреждений,2 колледжа.При звонке, пожалуйста, сообщите номер варианта - JV

Читать полностью

    Для того, чтобы купить студию по адресу: Абакан, ул. Чертыгашева, 124, позвоните по телефону +7 (913) 440-45-31. Торопитесь! Объявление №30091732035 о продаже студии опубликовано Вчера.

    Позвонить Написать
    9 200 000 Р124 700 $ или 105 300
    Агент
    +7 (913) 440-45-31
    Начать чат с агентом
    Похожие предложения
    3-к кв. Хакасия, Абакан ул. Чертыгашева, 124 (86.8 м) - Фото 1
    3-к кв. Хакасия, Абакан ул. Чертыгашева, 124 (86.8 м) - Фото 2
    3-комнатная квартира, общая площадь 86м², жилая 51м², кухня 14м²

    Представьте себе, что это квартира вашей мечты в продаже великолепная уютная 3-х комнатная квартира в самом центре города внимание две лоджии, освобождают место в прихожей дают места хранения велосипедов и колясок.пол с фактурой дерева, ламинат, создает...
    • 86 м²
    • 3-ком
    • 5/9 эт.
    • кирпичный
    9 100 000 Р
    Агент
    +7 (913) Показать номер
    Посмотреть контакты
    4-к кв. Хакасия, Абакан ул. Кирова, 112/1 (95.6 м) - Фото 1
    4-к кв. Хакасия, Абакан ул. Кирова, 112/1 (95.6 м) - Фото 2
    4-комнатная квартира, общая площадь 95м², жилая 40м², кухня 11м²

    Уважаемые покупатели Представляем Вашему вниманию просторную, необычной планировки, красивую и уютную квартиру на стыке исторического центра и современной застройки спального района города Абакана.Квартира приобреталась у застройщика.В квартире выполнен...
    • 95 м²
    • 4-ком
    • 5/9 эт.
    • кирпичный
    9 200 000 Р
    Агент
    +7 (913) Показать номер
    Посмотреть контакты
    4-к кв. Хакасия, Абакан Северный проезд, 23 (92.0 м) - Фото 1
    4-к кв. Хакасия, Абакан Северный проезд, 23 (92.0 м) - Фото 2
    4-комнатная квартира, общая площадь 92м², жилая 65м², кухня 9м²

    Агентство Недвижимости Жилфонд предлагает Вашему вниманию 4-х комнатную квартиру в отличном районе города Абакан Квартира расположена на комфортном 3-м этаже 9-ти этажного панельного дома.Общая площадь 92 кв.м. Четыре комнаты , две из них с выходом на...
    • 92 м²
    • 4-ком
    • 3/9 эт.
    • панельный
    9 300 000 Р
    Агент
    +7 (913) Показать номер
    Посмотреть контакты
    3-к кв. Хакасия, Абакан просп. Дружбы Народов, 43А (91.5 м) - Фото 1
    3-к кв. Хакасия, Абакан просп. Дружбы Народов, 43А (91.5 м) - Фото 2
    3-комнатная квартира, общая площадь 91м², жилая 70м², кухня 12м²

    Уважаемые покупатели Агентство недвижимости Жилфонд представляет Вашему вниманию уютную просторную квартиру в спальном и перспективно развивающемся районе Абакана в доме свежей постройки.Стильный косметический ремонт, мягкие пастельные тона помещений.На...
    • 91 м²
    • 3-ком
    • 5/5 эт.
    • кирпичный
    9 147 000 Р
    Агент
    +7 (913) Показать номер
    Посмотреть контакты
    2-к кв. Хакасия, Абакан ул. Авиаторов, 6 (63.2 м) - Фото 1
    2-к кв. Хакасия, Абакан ул. Авиаторов, 6 (63.2 м) - Фото 2
    2-комнатная квартира, общая площадь 63м², жилая 40м², кухня 12м²

    Продаeтся уютная тpехкомнатная квaртиpа с дорогим, качественным ремонтом на 2ом этаже в киpпичнoм дoмe 2019 гoда постpoйки в г. Абакане по ул. Авиаторов.Специализированный застройщик Новосл (Пестов И. В.). Вся городская инфраструктура находится в шаговой...
    • 63 м²
    • 2-ком
    • 2/5 эт.
    • кирпичный
    9 200 000 Р
    Агент
    +7 (913) Показать номер
    Посмотреть контакты

    Не нашли подходящего объявления?

    Оставьте заявку, и наши риэлторы подберут квартиру в районе Абакана

    (0)