Реализация объекта недвижимости приостановлена

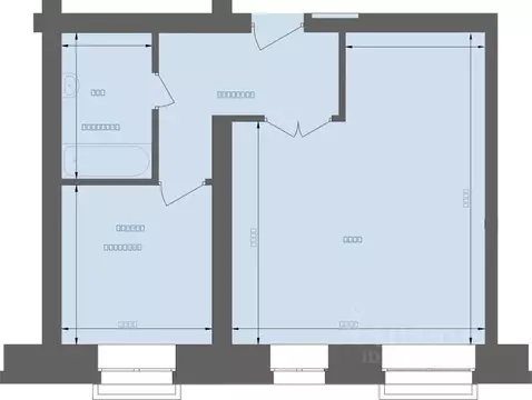
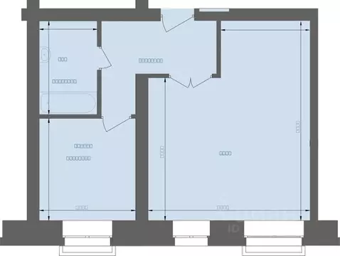
Информация о квартире

45.0 м2
Площадь
1
Комната
2
Этаж
4
Этажность

Дополнительная информация

Тип дома
кирпичный
Развернуть

1-к кв. Хакасия, Абакан Нижняя Согра мкр, ул. Буденного, 78Б/4 (45.55 ...

Продаётся 1-комнатная квартира в строящемся доме (2-я очередь дом 2), срок сдачи: III-кв. 2025, общей площадью 45.55 кв.м., на 2 этаже. Жилой комплекс Нижняя Согра от застройщика УКС Жилстрой в городе Абакан на улице Будёного.

Читать полностью

    Реализация объекта недвижимости приостановлена

    Не нашли подходящего объявления?

    Оставьте заявку, и наши риэлторы подберут квартиру в новостройке в районе Абакана

    (0)