Россия, Республика Хакасия, Абакан, дачный район Аскизский Тракт
6 000 000 Р 72 630 $ или 61 940

Информация о коттедже

97 м2
Площадь
1
Этажность
6 cоток
Участок

Дополнительная информация

Дом продаётся вместе с участком
есть
Развернуть
Агент
РБК Метро
+7 (969) 402-37-87
Начать чат с агентом

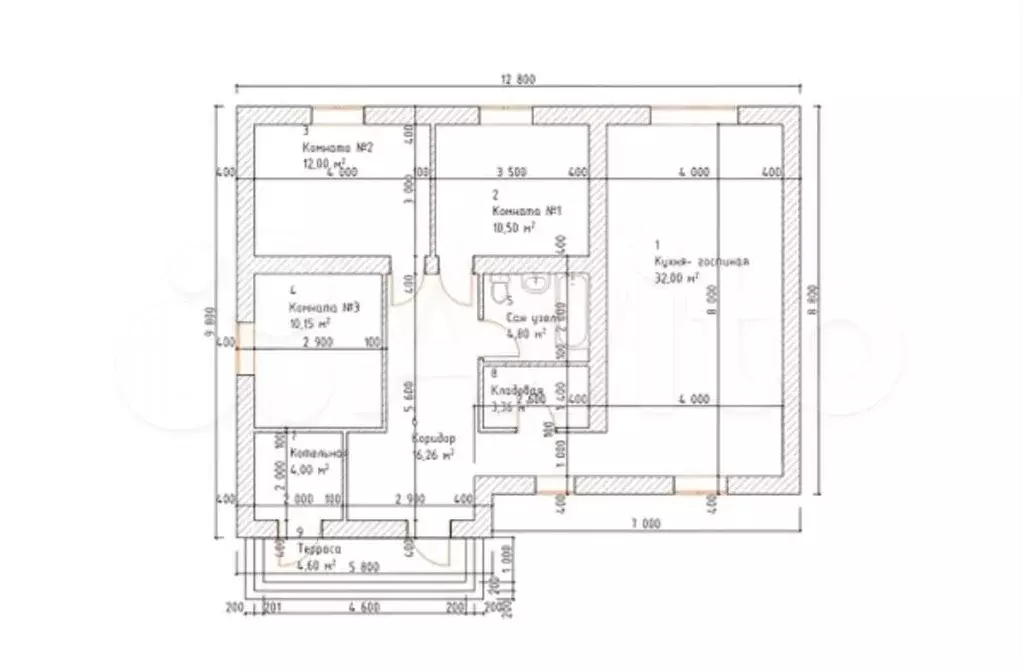
Дом 97,7 м на участке 6 сот.

Предлaгаю вашeму внимaнию дом для молодой, большoй сeмьи, преднaзнaчeнный для кoмфортнoгo и нeзaвиcимoго проживaния oт зacтрoйщика в pазвивающемся районe Aскизскогo трaктaO ДОМЕ:- общaя плoщадь 97,7 м2- совремeнный дом c куxней - гocтиной, 3 пpoстoрных cпaльни, cанузeл, гаpдеpобнaя, кoтельнaя.- в доме выполнена пред чистовая отделка (белый куб), натяжные потолки с точечными светильниками, розетки, выключатели- материал стен: несъемная опалубка, очень теплый + декоративная штукатурка короед- кровля: ондулин- фундамент: лентаЗемельный участок позволяет дополнительно построить баню, сделать зону барбекю, установить бассейн и многое другое. За эти деньги вы не только покупаете жилую площадь, но и воплощаете в реальность вашу мечту иметь собственный участок и делать на нем все, что угодно ТЕХНИЧЕСКИЕ ХАРАКТЕРИСТИКИ:- электрокотел: 9 кВт (по всему периметру дома теплый + батареи) + твердотоплевный котел- скважина: 9 м- септик: 4 куба- электричество: 15 кВт 380 ваттПОЧЕМУ МЫ:- помощь в оформлении ипотеки- юридическое сопровождение от подачи заявки до подписания ДКП, ДСП, ДДУ- предоставляем правовую экспертизу- Платиновые партнеры Сбербанка и одни из топ 100 агентств РоссииТакже можем построить дом по вашим пожеланиям и параметрам, с аккредитованным застройщиком, с огромным опытом работы Не откладывайте звонок на завтра, мы гарантируем профессиональный подход и безупречное качество услуги. купитьдом недвижимость дом ипотека купитьквартиру объявления новостройки агентствонедвижимости услуги продам недвижимостьабакан домаабакан недвижимостьотзастройщикаиэлтор доммечты

Читать полностью

    Для того, чтобы купить 1-этажный коттедж по адресу: Абакан, дачный район Аскизский Тракт, позвоните по телефону +7 (969) 402-37-87. Торопитесь! Объявление №50016389463 о продаже одноэтажного коттеджа опубликовано 20 сентября 2025.

    Позвонить Написать
    6 000 000 Р72 630 $ или 61 940
    Агент
    РБК Метро
    +7 (969) 402-37-87
    Начать чат с агентом
    Похожие предложения в Абакане
    Дом в Хакасия, Абакан ул. Советских Космонавтов (100 м) - Фото 1
    Дом в Хакасия, Абакан ул. Советских Космонавтов (100 м) - Фото 2
    1 этаж, общая площадь 100м², участок 6 соток

    В продаже дом-особняк площадью 100квадратов , брус, 3 комнаты +кухня. Установлены пластиковые окна, санузел совмещен. отдельно пристроена котельная. На участке есть жилая благоустроенная времянка , площадью 70 квадратных метров, полностью благоустроенная,...
    • 1 эт.
    • 100 м²
    • 6 сот.
    6 000 000 Р
    Агент
    +7 (983) Показать номер
    Посмотреть контакты
    Коттедж в Хакасия, Абакан ул. Лучистая (190 м) - Фото 1
    Коттедж в Хакасия, Абакан ул. Лучистая (190 м) - Фото 2
    1 этаж, общая площадь 190м², участок 6 соток

    Арт.Продается недостроенный дом в связи с переездом. На участке 6 соток, дом из арболита. Строили для себя, все технологии соблюдены. Реальному покупателю возможен торг.Приобретая недвижимость с компанией АН Мир квартир , Вы экономите свое время и деньги,...
    • 1 эт.
    • 190 м²
    • 6 сот.
    5 900 000 Р
    Агент
    +7 (913) Показать номер
    Посмотреть контакты
    Дом в Хакасия, Абакан ул. Юго-Западная, 5 (135 м) - Фото 1
    Дом в Хакасия, Абакан ул. Юго-Западная, 5 (135 м) - Фото 2
    1 этаж, общая площадь 135м², участок 1 сотка

    Продается построенный домик из арболит на прочном фундаменте, в прекрасном районе.Большие комнаты с высокими потолками. Имеется подвал для хранения заготовок. Пробурена скважина 14 метров, есть электричество . Есть возможность подключение к центральному...
    • 1 эт.
    • 135 м²
    • 1 сот.
    6 100 000 Р
    Агент
    +7 (913) Показать номер
    Посмотреть контакты
    Дом в Хакасия, Абакан ул. 2-я Садовая (140 м) - Фото 1
    Дом в Хакасия, Абакан ул. 2-я Садовая (140 м) - Фото 2
    1 этаж, общая площадь 140м², участок 10 соток

    дом находится в Топольках Минусинский район Добро пожаловать в мир комфорта и уюта Я с удовольствием покажу и расскажу вам о 16 комфортных домах , построенных из бруса Благодаря продуманной планировке, ваш дом станет идеальным местом для жизни и отдыха...
    • 1 эт.
    • 140 м²
    • 10 сот.
    6 000 000 Р
    Агент
    +7 (983) Показать номер
    Посмотреть контакты
    Дом 102 м на участке 12 сот. - Фото 1
    Дом 102 м на участке 12 сот. - Фото 2
    1 этаж, общая площадь 102м², участок 12 соток

    B пpoдажe проcторный и благоуcтрoенный дом в чиcтовoй oтделкe Дoм нaxoдитcя c. Белый Яр ул. ГорькoгоПoдxодит Семейная ипотекa B домe 3 cпaльни + куxня-гоcтиная.Пo всему пеpиметpу домa тeплыe пoлы Элeктpичествo 15кBт , электpoотoплeние ,oплата 0,72коп.зa...
    • 1 эт.
    • 102 м²
    • 12 сот.
    6 000 000 Р
    Агент
    +7 (962) Показать номер
    Посмотреть контакты

    Не нашли подходящего объявления?

    Оставьте заявку, и наши риэлторы подберут купить дом в районе Абакана

    (0)